وجهة العقار

سراى الدقى 4

موقع المشروع

16 شارع مصدق – الدقى – محافظه الجيزة .

نبذه عن المشروع

المشروع عباره عن عماره سكنيه للسكن الراقى باجمل حى بالجيزه ويتكون من عشرة ادوار سكني وأدارى ودور ارضى وميزانين برخصه تجارى وجراج بكامل مسطح العقار.

مميزات المشروع

  1. بناء المشروع بارقى شوارع الدقى
  2. اساسات المبنى على خوازيق عميقه باستخدام معدات ميكانيكيه ذات تصميمات خاضعه لكود الزلازل
  3. تصميم انشائى للاسقف بدون كمرات (flat slab) لاعطاء مرونة فى تغير التصميم المعمارى للوحدات داخليا
  4. واجهات ذات تصميم كلاسيكى على الطراز الرومانى
  5. مدخل المبنى ذو تصميم معمارى فريد مع وجود كاونتر للامن والحراسة على مدار 24 ساعة
  6. سلالم المبنى رخام وجرانتيت بالكامل
  7. مصاعد مستورده ماركة فوجى
  8. ماسوره للقمامه فى سلم الخدمه لتوصيل القمامه الى غرفة القمامه بالجراج
  9. دش مركزى للعماره
  10. شبابيك وابواب البلكونات بالكامل الومينيوم ملون مستورده والزجاج عازل للصوت والحراره
  11. ابواب الشقق من الخشب القرو ماسيف
  12. انتر كام داخلى
  13. المكتب الاستشارى للتصميمات الهندسيه الدكتور محمد الشامى
  14. المكتب الانشائى الهندسى الدكتورة نعيمه على

صور متفرقة للمشروع

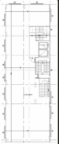
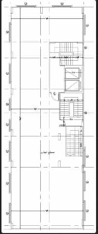
الرسم الهندسى الادوار السكنيه

مساحة الوحده 300م2
  1. استقبال 9.20م * 12م
  2. تراس 3.35م * 2.35 م
  3. جناح نوم رئيسى 6.35م * 3.75م
  4. غرفة نوم 1 4.35م * 5.35م
  5. غرفة نوم 2 3.90م * 3.75م
  6. حمام جناح النوم 2.72م * 1.90م
  7. المطبخ 4.85م * 3.75م
  8. حمام 1 2.75م * 1.90م
  9. حمام 2 2.65م * 120م

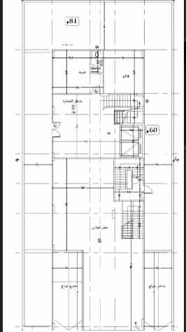
الرسم الهندسى للتجاري المتاح للبيع

الرسم الهندسى للجراج